Designing
Integrated Engineering Department
Designing
Our Integrated Engineering Department consists of highly qualified Engineers. Our experienced team is focused on your steel structure project’s success, from start to finish. Our proven ability to identify and overcome design inconsistencies, potential problems with erection, and shipping obstacles results in the fabrication of structural steel that is right the first time, helping you avoid costly construction delays. we can offer a tailor-made configuration using our design consultation services. With our years of experience, fabrication, capacity and engineering skills, we have constantly met the highest expectations. Our design team is capable of working with any international design and loading code.
Services Offered:
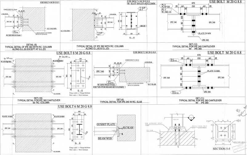
- Design for steel structures and PEB (Connection Designs, Static Systems Designs, etc.)
- Project Management and Coordination.
Design Codes
- Egyptian code of practice for steel construction and bridges
- American Institute of Steel Construction
- Structural use of steel work in building (British Standard)

From conceptual design to the very end of the project, Osmacom deliver fast-track tailored services and seamless technical support for the best experience. It starts from engineering, procurement and manufacturing and extends into installing the building along with its accessories., we stay in close contact for any solution you need. Our strength lies in premium products, from your initial ideas, Osmacom will propose a fast and binding plan in terms of design, fabrication, erection, costs, and timeframe.
